CAMINO DRIVE
WHISTLER
CAMINO
DRIVE
WHISTLER
Why Tear It Down, When You Can Make It Better?!
For this project, we had to think outside the box. Our clients loved their property but had outgrown the space. Rather than demolish the existing gambrel-roof home, we worked with the planning department and zoning by-laws to come up with a smarter solution—one that gave the family the extra space they needed while preserving the character of the original home. The result is a thoughtful and functional layout where the original structure now serves as a rental-ready auxiliary building, and a brand-new main house sits proudly alongside it. This kind of creativity is what we love most—turning constraints into opportunities and designing spaces that feel like they’ve always belonged.
Zoning Challenges
Rather than starting from scratch, we made the decision to respect the existing structure—and the zoning constraints that came with it. We reimagined the original home as an auxiliary building, unlocking its potential as a future rental suite. This move allowed us to channel our efforts into designing a brand-new home on the same lot, sized just right for the expanding family. It’s a great example of how, with the right planning and team, you can make more space without more impact.
Designing For Light and Views
We ran sun studies to make sure the new build would take full advantage of the light—especially the warm southern exposure—without compromising natural light to the original home. Through careful placement and elevation, we unlocked views of Blackcomb to the southeast and Whistler to the south. These were too good not to highlight, so we positioned the main living spaces and two south-facing decks on the upper floor. Below sits a practical two-car garage, while above, the decks serve different functions—one open and airy for summer lounging, and one covered and cozy for those crisp winter mornings.
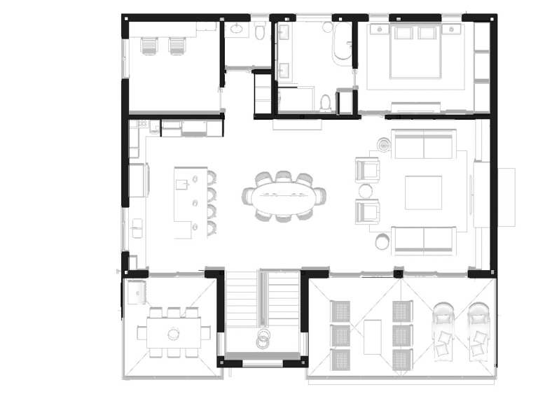
Space Designed For Real Life
We were lucky enough to be involved in the interior design for this home, too. Our team created warm, welcoming rooms that support the way our clients live and host. The palette leans into light wood tones to keep things bright and grounded, and a fireplace anchors the main living area, giving the family a cozy gathering spot with those incredible views front and center. Every detail was chosen with intention—to make the home feel lived-in, loved, and just right.
Built To Last
We’re always designing for the long-term, and that means using smart, durable materials. On this build, we incorporated FireSmart materials on exposed faces for added protection. In more sheltered zones, we brought in natural wood and stone to reflect the character of the surrounding landscape and complement the original structure. The result is a home that feels cohesive, grounded, and ready for the future.
Render to Reality

A Closer Look
Building Design: GNAR Inc.
Builder: CVC Custom Homes
Details: 6 beds / 5.5 baths
Completed: Summer 2025